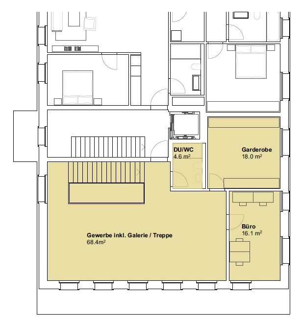
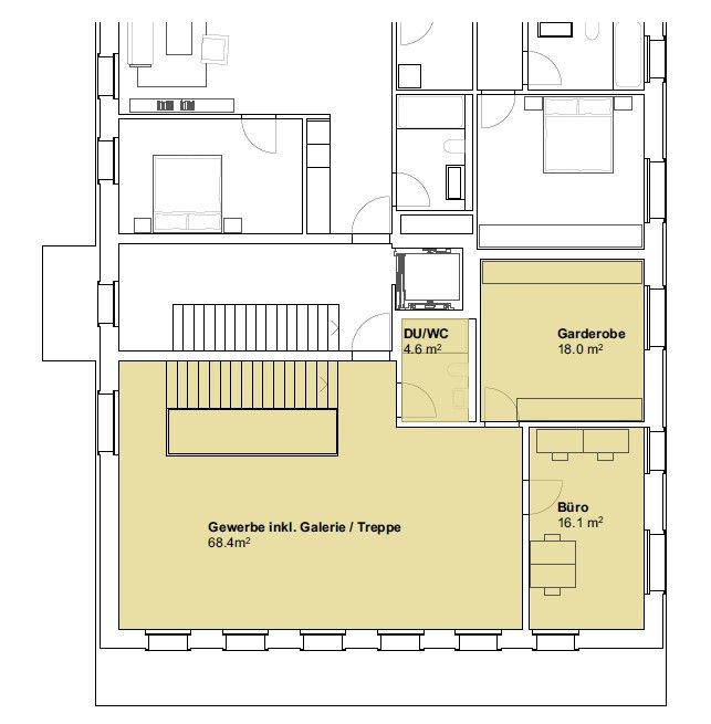
Neuerstellte Geschäftsräume (Praxis/Büro etc.) im Rohbau an der Bernstrasse 34 in Herzogenbuchsee (BE)
An gut frequentierter Lage mit bester Sichtbarkeit verkaufen wir Gewerberäumlichkeiten (182m2) im EG/OG im Rohbau. Die Räume können beliebig unterteilt werden und lassen eine vielseitige Nutzung zu. Das Obergeschoss ist mit einer internen Treppe erschlossen, kann jedoch auch mit der hausinternen Liftanlage erreicht werden. Der Innenausbau kann durch die Käuferschaft mitbestimmt werden. Ein grosser Keller gehört ebenfalls zum Angebot.
Gerne erläutern wir Ihnen die Details persönlich - wir freuen uns auf Ihre Kontaktaufnahme!

